Luxury Trailers
(slideshow may take a few moments to load)
1. 2 DOOR DELUXE TRAILER UNIT (Optional battery solar unit available)
1 Day Event, Up to 120 People
Two Self Contained Restrooms
Includes pick-up &
delivery within our
service area
Features two fully self-contained restrooms, providing complete privacy for each guest. Beautiful bright interior with all-LED interior and exterior lighting, large mirrors, solid surface countertops, stainless steel sinks and chrome fixtures, vinyl plank wood grain flooring, and auto flush urinal in one restroom. This unit also has the option of air conditioning or heating depending on the season.
2. 3 DOOR DELUXE TRAILER UNIT (Optional battery solar unit available)
1 Day Event, Up to 180 People
Three Self Contained Restrooms
Includes pick-up &
delivery within our
service area
Features three fully self-contained restrooms, providing complete privacy for each guest. Beautiful bright interior with all-LED interior and exterior lighting, large mirrors, Corian countertops, stainless steel sinks and chrome fixtures, high density wood grain linoleum flooring, and auto flush urinal in one restroom. This unit also has the option of air conditioning or heating depending on the season.
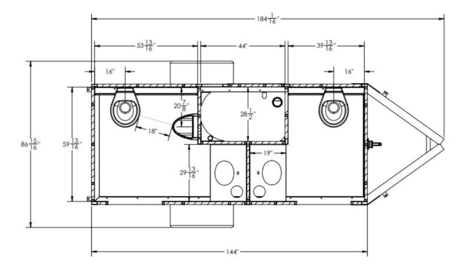
3. 814 Luxury Trailer Unit
1 Day Event, Up to 250 People
Women's - 2 stalls
Men's - 3 urinals, 1 stall
Includes pick-up &
delivery within our
service area
Air conditioned 2 door washroom unit with 2 stalls on one side and 1 stall with 3 flushing urinals on the other. Both sides feature framed glass mirrors with soffit lights, skylights, solid wood vanity with solid surface sink tops and stainless steel fixtures.
4. 2 DOOR STANDARD FOR CONSTRUCTION USE
Two Self Contained Restrooms
Includes pick-up &
delivery within our
service area
-
- - Hot water wash
- - Ceramic pedal flush toilet
- - Heated and Insulated
- - Fresh water supply
- - Large holding tank
- - Liquid soap & paper towel dispensers
- - Large mirrors
- - Spacious well lit interior
- - Stainless steel sinks and fixtures
We also offer generator and panel rental


















